Résidence LA SOIERIE à Moirans
Appartements du T2 au T4
Venez découvrir cette réhabilitation d’un bâtiment faisant partie du patrimoine de la ville en une résidence chaleureuse, sécurisée et à taille humaine.
La copropriété comprend 18 lots conçus pour offrir confort et bien-être aux occupants. Chaque logement bénéficie d’une place de parking nominative et la possibilité d’acquérir un garage.
Aménagement intérieur de votre choix : les biens sont vendus en plateaux viabilisés à réhabiliter à votre guise. Possibilité d’un accompagnement complet sur le second oeuvre.
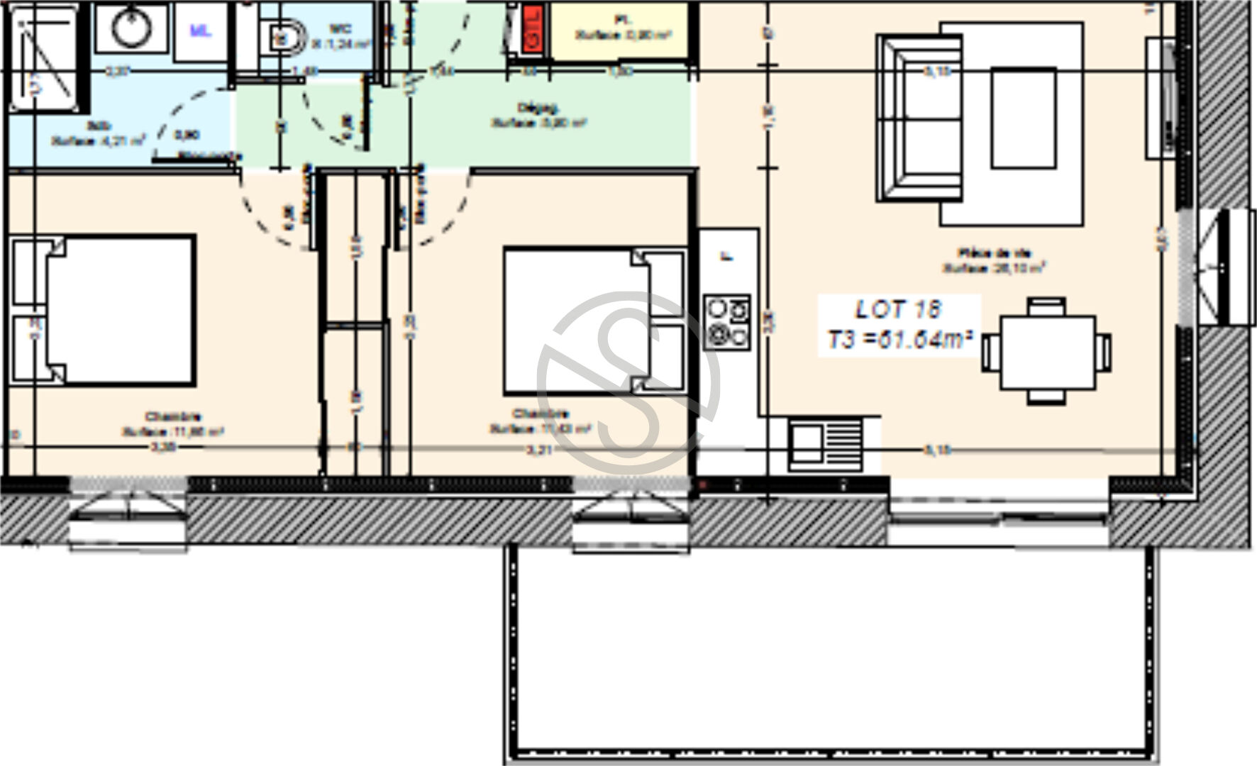
Ces T3 au 1er étage bénéficient d’une terrasse privative de 15 m2 plein SUD. Des espaces intérieurs bien pensés pour profiter pleinement de votre propriété. Une vue dégagée sur le Vercors !
Baie vitrée alu et fenêtre pvc
Volets roulants électrique
Contactez Antoine pour une étude personnalisée de votre projet et pour découvrir toutes les possibilités qui s’offrent à vous.
Copropriété de 31 lots – dont 18 lots habitation.
Charges annuelles : 1 euros.
Antoine SAUVEGRAIN (EI) Agent Commercial – Numéro RSAC : 901364661 – VIENNE.





