A découvrir sans tarder ! Construction Premuim
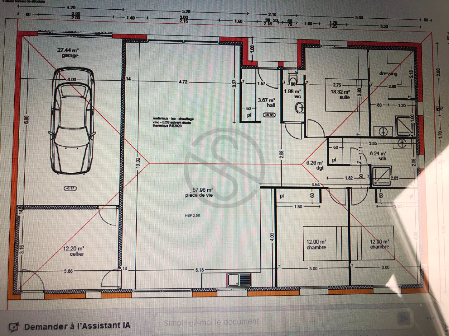
Située à 5 minutes de Davézieux, sur la commune de Peaugres, dans un environnement calme, cette villa de plain-pied offre une surface habitable de 138 m², implantée sur une parcelle de 1 100 m².
Elle se compose de :
Une belle pièce de vie lumineuse
Un cellier
Une suite parentale avec salle d’eau
et 2 chambres
Une salle de bains
1 WC indépendant
Garage de 27 m²
Prestations appréciables :
chauffage pompe à chaleur air eau
volets électriques
Frais de notaire réduits
Assurance dommage-ouvrage
Un bien idéal pour une vie de famille au calme, tout en restant proche des commodités.
Sabrina BLACHIER (EI) Agent Commercial – Numéro RSAC : 902065200 – AUBENAS.


